Blog navigation

Derniers articles

Derniers commentaires

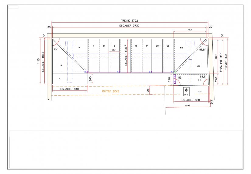
Escalier extérieur : comment prendre les mesures avec des murs pas droits ?

Laissez un commentaire

Code de sécurité